ФІНАЛІСТИ
Категорія 1
Захисні споруди для відкритої місцевості та малих населених пунктів
КОМАНДА: Коровка Дарʼя, Михеєва Вікторія.
Основою концепції для підвального приміщення школи стало створення безпечних і водночас зручних умов для учнів, викладачів та місцевих мешканців — як для тимчасового, так і для тривалого перебування. Укриття задумане не просто як захисна споруда, а як новий громадський простір для об'єднання спільноти у будь-який час.
Простір побудований на принципі гнучкості: пересувні звукоізоляційні перегородки дозволяють створити один загальний зал або розділити його на п'ять окремих зон — універсальні навчальні приміщення, простір для викладачів та зону загального користування. Це дає змогу проводити не лише уроки, а й майстер-класи, лекції, зустрічі та різноманітні події.
Для тривалого перебування команда передбачила систему вбудованих ліжок-трансформерів: у вертикальному положенні вони інтегровані в стіни як панелі, а при необхідності трансформуються у повноцінні спальні місця. Додаткові меблі мають окреме місце зберігання в інвентарній.
Технічні приміщення мають обмежений доступ та ізольовані від загальної зони. Фільтровентиляційна установка та вентиляційна система розташовані біля торцевих стін згідно з вимогами ДСНС. Захисна споруда має аварійні виходи, зони для запасів їжі та повний комплекс систем базової життєвої необхідності.
Вхідна група розташована на відстані 9 метрів від шкільних фасадів з урахуванням зони можливого обвалу та обладнана парковкою для велосипедів і самокатів. Простір над укриттям використано як рекреаційну зону — нове місце для відпочинку та спілкування, якого раніше не вистачало для учнів.
Ідея базується на принципах адаптивності, багатофункціональності та реверсивності. Замість будівництва нових споруд — робота з наявною інфраструктурою без втручання в несучі конструкції, а також з максимальною увагою до потреб людей у кризових ситуаціях.
Проєкт розроблено на основі польового дослідження реального підземного переходу — команда працювала з фактичними вимірами та особливостями існуючого простору.
Команда запропонувала три варіанти адаптації простору:
- Меблі-трансформери — у звичайному режимі функціонують як інформаційно-рекламні стенди, а під час тривоги швидко трансформуються в лавки та столи. Рішення зберігає вільний простір у повсякденному використанні та може бути адаптоване як для підземних переходів, так і для метрополітену у вигляді окремостоячих стендів без потреби кріплення до стін.
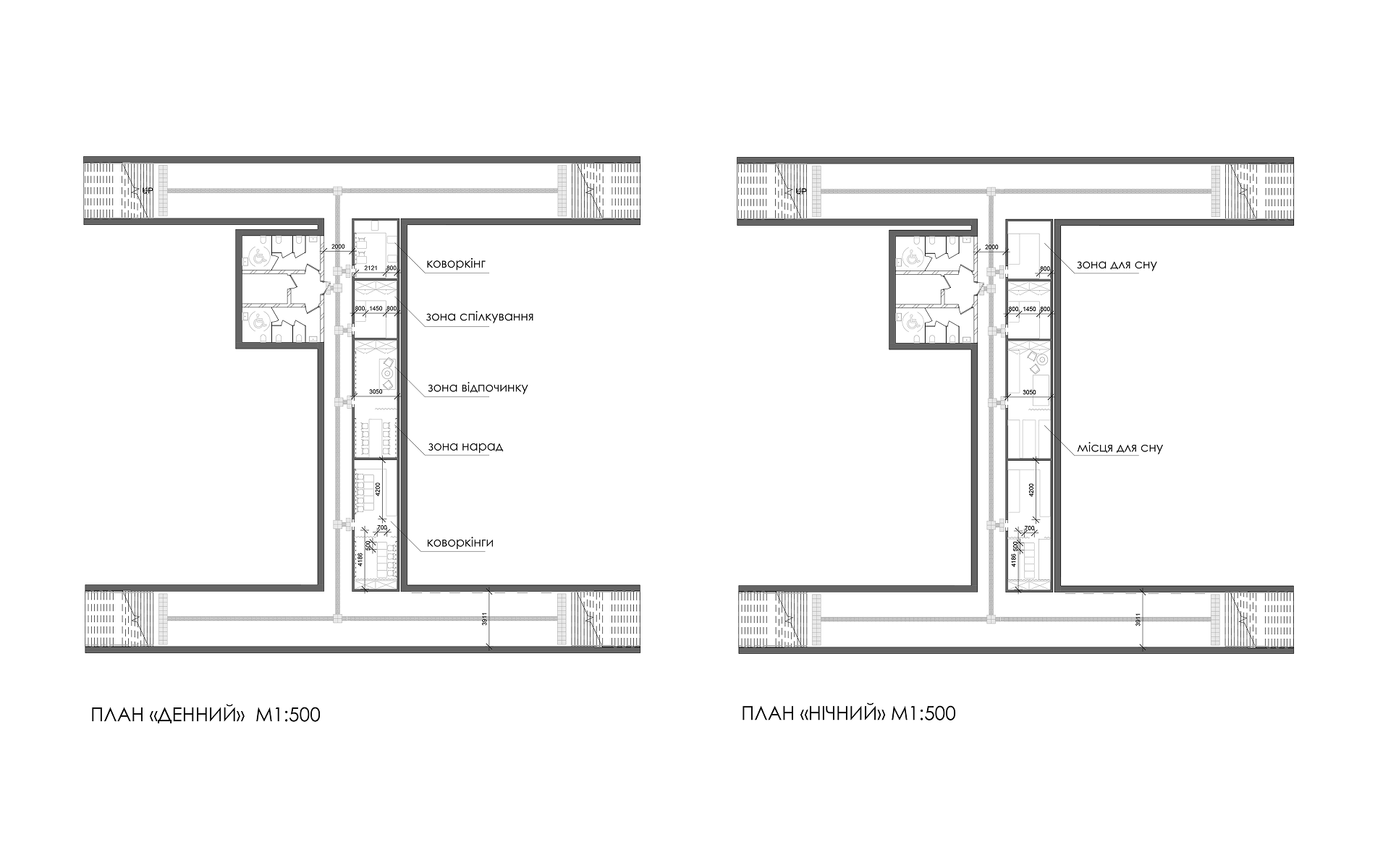
- Модульні капсули — закриті автономні блоки, що встановлюються без втручання в існуючі конструкції. Замкнений об'єм краще зберігає тепло та створює більш комфортні умови під час тривалого перебування. Гнучкі сценарії меблювання для денного та нічного використання дозволяють зонувати простір і забезпечити різні рівні приватності.
- Стаціонарні поліфункціональні простори — створені на базі наявних торгівельних точок. Мають різні функції вдень і вночі, а після завершення воєнного періоду можуть продовжувати служити громаді в іншому форматі.
Основними матеріалами, з яких виготовлені меблі, є перероблений пластик та неіржавна сталь.
Окремим напрямом команди стала розробка навігаційної системи, що допомагає орієнтуватися в складному просторі та знижує рівень стресу. Візуальні рішення будуються на простих, впізнаваних елементах і можуть бути легко відтворені в інших локаціях.
На початку проєкту учасники провели польове дослідження та виявили критичну нестачу укриттів загального користування в обраній зоні. Аналіз потоку пасажирів показав, що через зупинку проходять три автобусні маршрути та два маршрутних таксі з інтервалом 7-10 хвилин, а середня кількість користувачів становить близько 60 осіб на годину в пікові періоди.
Запропоноване рішення розраховане не лише для пасажирів громадського транспорту, а й для мешканців найближчої житлової забудови. Загальна кількість потенційних користувачів — 158 осіб із 830 мешканців у зоні доступу.
Укриття спроєктоване так, аби гармонійно вписуватися в різні архітектурні контексти міст. Команда прагнула поєднати кінетичну складову з функцією та естетикою — так з'явилась кортенова конструкція-"гармошка" на фасаді, яка за потреби повністю закриває простір укриття, збільшуючи рівень захисту. Конструкція складається з бетонних модулів і розсувних елементів з кортену. Бетон відповідає за основну безпеку, а кортен — за візуальну та функціональну складову.
Споруда повністю автономна: на даху розташовані сонячні панелі, передбачено рекуператор для вентиляції. Для маломобільних груп облаштовані пандуси, місця для крісел колісних та інклюзивні вбиральні.
За концепцією команда поєднала укриття, зупинку та кіоск. У повсякденному режимі це може бути міні-кафе, де люди купують каву, сідають і відпочивають. Під час тривоги — це укриття з чіткою функцією захисту.
В інтер'єрі команда закладала багато світла, доступ до води, зручні сидіння — все, щоб люди почувалися більш спокійно в критичній ситуації.
Проєкт укриттів 1
Імʼя Прізвище, Імʼя Прізвище, Імʼя Прізвище
Короткий опис проєкту, короткий опис проєкту короткий опис проєкту, короткий опис проєкту, короткий опис проєкту короткий опис проєкту короткий опис проєкту, короткий опис проєкту, короткий опис проєкту.
